Casa semindipendente in vendita

Gorla Minore, Via G. Giacchetti
€ 289.000
3 locali 3 locali
243 Mq 243 Mq
2 bagni 2 bagni

Casa semindipendente in vendita

Gorla Minore, Via G. Giacchetti

Descrizione annuncio

GORLA MINORE: in zona residenziale circondata da altre ville, soluzione semindipendente unica nel suo genere con giardino e ampio box. Una casa fuori dagli schemi, capace di unire comfort, spazio e carattere.

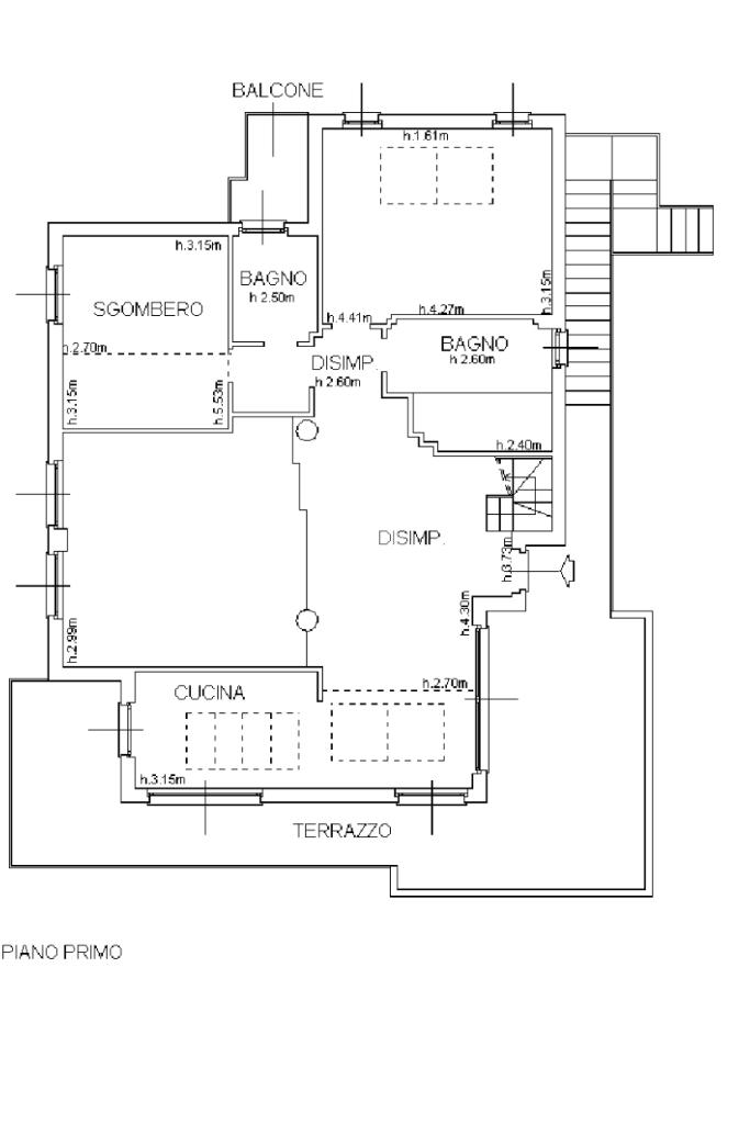
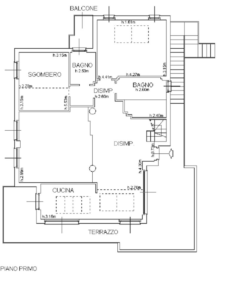
Proponiamo in vendita un affascinante appartamento semindipendente di circa 140 mq, situato al primo piano di una villa unifamiliare successivamente modificata per creare due unità abitative con ingressi indipendenti. La proprietà si distingue per una pianta originale e dinamica, perfetta per chi desidera ambienti non convenzionali e travi a vista.

L' Ingresso all'immobile si ha dal grande terrazzo, ideale per momenti di relax all’aperto e perfettamente collegato anche alla cucina.
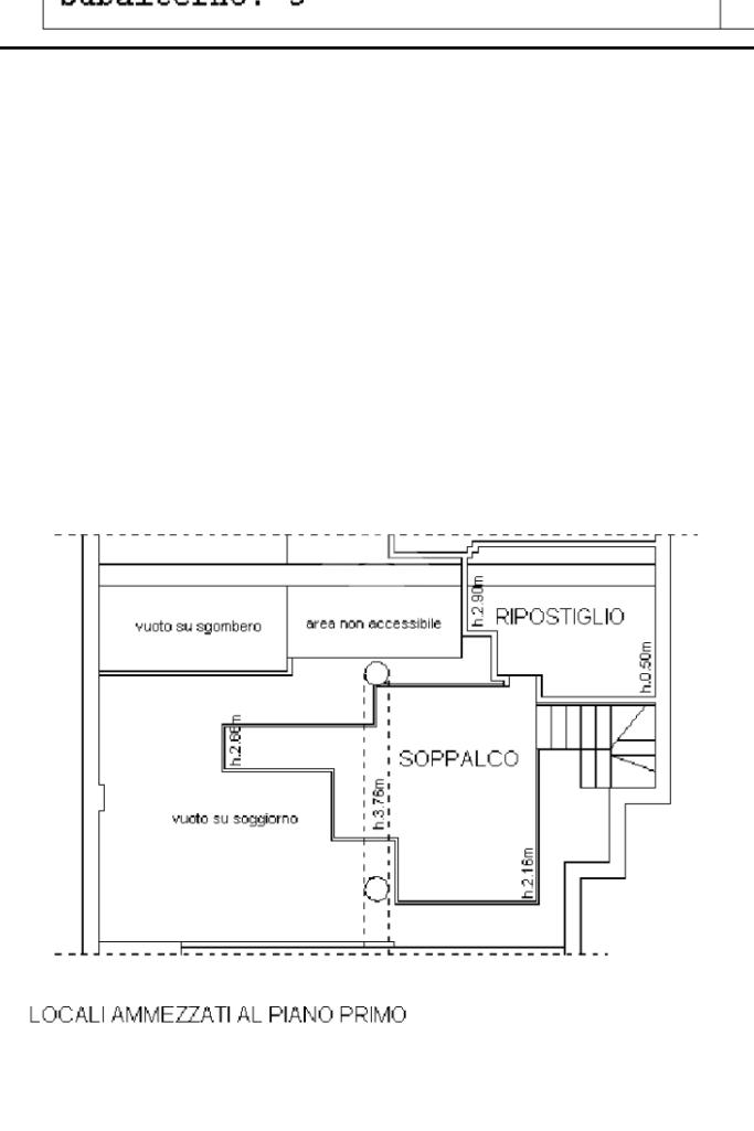
L’accesso conduce a un soggiorno ampio e scenografico, caratterizzato da altezze importanti e arricchito da un suggestivo soppalco a vista, che dona respiro e luminosità all’ambiente.
La zona giorno è ben distribuita: sulla sinistra troviamo la sala da pranzo e la cucina, resa ancora più luminosa grazie alle grandi finestre Velux mentre la zona notte è più riservata: sulla destra si sviluppano una camera matrimoniale con finestre Velux, una seconda camera e due bagni, di cui uno con comoda lavanderia e balcone.

Completano la proprietà spazi ripostiglio nel soppalco, pratici e funzionali; un grande giardino privato al piano terra, perfetto per famiglie, animali o momenti all’aria aperta e, infine, un box autorimessa di circa 30 mq.

Una soluzione ideale per chi desidera indipendenza, metrature generose e un’abitazione dal carattere distintivo.

Mostra tutto

Nelle vicinanze

Trasporto pubblico Trasporto pubblico
Trasporto pubblico
360 m
Ricariche auto elettriche Ricariche auto elettriche
Marnate San Luigi | EnelX
1,9 Km
Marnate San Carlo | EnelX
2,1 Km
Marnate Sassu | EnelX
2,3 Km
Scuole Scuole
Collegio Rotondi
840 m
Scuola Secondaria di primo grado Alessandro Manzoni
850 m
Scuola Primaria Giuseppe Parini
880 m
Scuola Primaria A. Gabelli
1,6 Km
Scuola Primaria Giovanni Pascoli
2,0 Km
Farmacia Farmacia
Farmacia di Gorla Minore
690 m
Farmacia comunale di Prospiano
1,1 Km
Farmacia Milanese
2,2 Km
Farmacia
2,4 Km
Ospedali Ospedali
Fondazione Raimondi Francesco
1,1 Km
Supermercati Supermercati
Superette
770 m
Conad
870 m
In's Mercato
950 m
Tigros
1,6 Km
MD
1,7 Km
Negozi Negozi
Negozi
1,7 Km
Alimentari Landoni
2,1 Km
Alimentari Macelleria di Zanella Stefano
2,2 Km
Dida & Rosy
2,2 Km
Bar Bar
Bililà
680 m
Bar Enea
1,8 Km
Bar Sport
2,1 Km
Circolino
2,1 Km
Punta Renas
2,9 Km
Ristoranti Ristoranti
Bar Pizzeria Victory
1,7 Km
Ma.Ri.Na.
1,9 Km
Original Pizza
2,0 Km
Osteria del Sagrantino
2,2 Km
Ristorante Pizzeria Le Tre Marie
2,4 Km
Mostra tutto

Caratteristiche

Rif.:
61201839
Piano:
1 di 1 (ultimo Piano)
Box:
1
Posti auto:
1
Balconi:
1
Terrazzi:
1
Mostra tutto
Prezzo Prezzo
€ 289.000
Rata mutuo Rata mutuo
€ 1.362 / mese
Proponi il tuo prezzoProponi il tuo prezzo

Classe Energetica

E
E
E
E
E
E
E
E
E
EP globale non rinnovabile:
235.95 kW h/m² anno
EP invernale del fabbricato:
EP estiva del fabbricato:
Anno di costruzione:
1998
Riscaldamento:
Autonomo
Tipo impianto:
A radiatori
Tipo alimentazione:
Metano

Ti interessa visionare l'immobile?

Fissa un appuntamento  Fissa un appuntamento

Richiedi informazioni

Clicca su Leggi per aprire l'informativa
* Questi campi sono obbligatori

Calcola il tuo mutuo

Semplice e senza impegno
Anticipo

( % )
Mutuo

( % )

pochi semplici passi

inserisci i tuoi dati
Questionario completato
Grazie per aver richiesto un appuntamento senza impegno con un nostro Consulente del Credito e Assicurativo.

Hai inserito correttamente tutti i dati necessari e a breve riceverai una e-mail con un link da convalidare per inviare i tuoi dati.
Affiliato
Studio Marnate Sas
P.zza S. Ilario, 74 21050 Marnate (VA)

Il nostro staff


  • Francesco Fusaro
    Affiliato

  • Roberta Molteni
    Collaboratrice
P.zza S. Ilario, 74 21050 Marnate (VA)
Zona: Marnate - Nizzolina - Gorla Minore
Mostra su mappa
Orari: Da Lunedì a Venerdì dalle 09.00 alle 12.30 e dalle 15.00 alle 19.30. Sabato mattina dalle 09.00 alle 12.30 sabato pomeriggio su appuntamento
Affiliato
Studio Marnate Sas
P.zza S. Ilario, 74 21050 Marnate (VA)

2026 Tecnocasa Franchising S.p.A. - P. IVA 08365160152 - Via Monte Bianco 60/A 20089 Rozzano (MI). Ogni agenzia ha un proprio titolare ed è autonoma. Privacy policy | Policy utilizzo | Cookie policy