Casa semindipendente in vendita

Marnate, Via Gioacchino Rossini - Nizzolina
€ 225.000
3 locali 3 locali
190 Mq 190 Mq
2 bagni 2 bagni

Casa semindipendente in vendita

Marnate, Via Gioacchino Rossini - Nizzolina

Descrizione annuncio

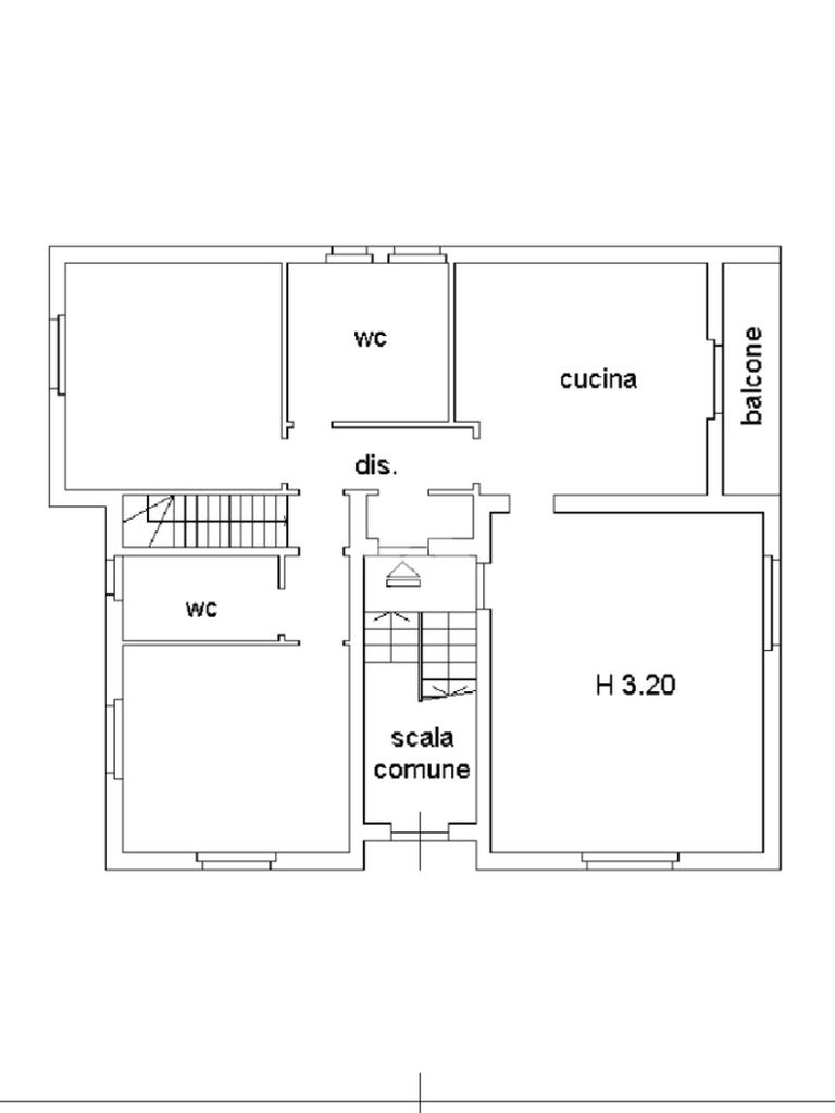
MARNATE: proponiamo in vendita splendido appartamento inserito in contesto trifamiliare, ideale per chi cerca tranquillità e indipendenza senza rinunciare alla comodità dei servizi.

Ristrutturato nei primi anni 2000, a seguito dell'ampliamento della villa unifamiliare originale, si presenta in ottime condizioni. La soluzione è così composta: ampio soggiorno con doppio affaccio e camino a legna, cucina abitabile con accesso al balcone, dal quale si può raggiungere direttamente l’area esterna privata.

La zona notte comprende un comodo disimpegno con ripostiglio, un primo bagno con doccia, una spaziosa camera matrimoniale, un secondo bagno e una seconda camera da letto.

L’appartamento, libero su tutti i lati, si distingue per la luminosità degli ambienti e la funzionale distribuzione degli spazi. I serramenti sono in PVC con tapparelle elettriche; le camere da letto sono dotate di aria condizionata, mentre tutti gli ambienti dispongono di pale a soffitto per il raffrescamento.

Completano la proprietà un piano seminterrato collegato da scala interna, dove troviamo un’ampia cantina, un locale tecnico e una zona ricreativa, oltre a un’ampia area esterna privata, ideale per momenti di relax all’aperto, pranzi e cene in compagnia.

A valorizzare ulteriormente la soluzione, un comodo box doppio, perfetto per ospitare due auto e offrire ulteriore spazio di deposito.

L’ingresso pedonale è in comune con le altre due unità abitative, mentre il passo carraio che conduce al box è indipendente. Bassi costi di gestione.

Soluzione ideale per famiglie o per chi desidera vivere in un contesto riservato e con poche unità abitative.

Mostra tutto

Nelle vicinanze

Trasporto pubblico Trasporto pubblico
Rescaldina
Rescaldina
2,8 Km
Trasporto pubblico
460 m
Castellanza - Corso Matteotti, ex passaggio a livello
Castellanza - Corso Matteotti, ex passaggio a livello
1,5 Km
Ricariche auto elettriche Ricariche auto elettriche
Marnate San Carlo | EnelX
350 m
Marnate San Luigi | EnelX
710 m
Marnate Sassu | EnelX
760 m
Castellanza San Camillo | EnelX
1,2 Km
Castellanza LIUC | EnelX
1,6 Km
Scuole Scuole
Scuola Secondaria di primo grado Dante Alighieri
410 m
Scuola Primaria A. Gabelli
1,1 Km
Scuola Primaria Edmondo De Amicis
1,2 Km
LIUC - Università Carlo Cattaneo
1,4 Km
Istituto Maria Ausiliatrice
1,5 Km
Farmacia Farmacia
Farmacia
1,2 Km
Farmacia comunale di Prospiano
1,8 Km
Farmacia Milanese
2,0 Km
Farmacia Buon Gesù
2,2 Km
Farmacia Borgo San Martino
2,3 Km
Ospedali Ospedali
Humanitas Mater Domini
1,6 Km
Fondazione Raimondi Francesco
1,7 Km
Supermercati Supermercati
In's Mercato
1,4 Km
Conad
1,5 Km
IN's Mercato
1,7 Km
EuroSpin
1,7 Km
Lidl
1,7 Km
Negozi Negozi
Dida & Rosy
1,9 Km
Alimentari Landoni
1,9 Km
Dispensa senza glutine
1,9 Km
Alimentari Macelleria di Zanella Stefano
1,9 Km
GustaMi
2,2 Km
Bar Bar
Punta Renas
550 m
Drink Me
1,5 Km
Ritual Club
1,6 Km
Bar Sport
1,8 Km
Land Of Freedom
1,8 Km
Ristoranti Ristoranti
La Terrazza
1,2 Km
Ristoranti
1,2 Km
Ristorante Gardenia
1,5 Km
Osteria del Sagrantino
1,5 Km
I taglieri del re
1,7 Km
Mostra tutto

Caratteristiche

Rif.:
61201816
Piano:
Terra di 2
Totale piani:
2
Box:
1
Posti auto:
2
Balconi:
1
Mostra tutto
Prezzo Prezzo
€ 225.000
Rata mutuo Rata mutuo
€ 1.068 / mese
Proponi il tuo prezzoProponi il tuo prezzo

Classe Energetica

Questo immobile è esente da classe energetica
Anno di costruzione:
1968
Riscaldamento:
Autonomo
Tipo impianto:
A radiatori
Tipo alimentazione:
Metano

Ti interessa visionare l'immobile?

Fissa un appuntamento  Fissa un appuntamento

Richiedi informazioni

Clicca su Leggi per aprire l'informativa
* Questi campi sono obbligatori

Calcola il tuo mutuo

Semplice e senza impegno
Anticipo

( % )
Mutuo

( % )

pochi semplici passi

inserisci i tuoi dati
Questionario completato
Grazie per aver richiesto un appuntamento senza impegno con un nostro Consulente del Credito e Assicurativo.

Hai inserito correttamente tutti i dati necessari e a breve riceverai una e-mail con un link da convalidare per inviare i tuoi dati.
Affiliato
Studio Marnate Sas
P.zza S. Ilario, 74 21050 Marnate (VA)

Il nostro staff


  • Francesco Fusaro
    Affiliato

  • Roberta Molteni
    Collaboratrice
P.zza S. Ilario, 74 21050 Marnate (VA)
Zona: Marnate - Nizzolina - Gorla Minore
Mostra su mappa
Orari: Da Lunedì a Venerdì dalle 09.00 alle 12.30 e dalle 15.00 alle 19.30. Sabato mattina dalle 09.00 alle 12.30 sabato pomeriggio su appuntamento
Affiliato
Studio Marnate Sas
P.zza S. Ilario, 74 21050 Marnate (VA)

2026 Tecnocasa Franchising S.p.A. - P. IVA 08365160152 - Via Monte Bianco 60/A 20089 Rozzano (MI). Ogni agenzia ha un proprio titolare ed è autonoma. Privacy policy | Policy utilizzo | Cookie policy